Расстановка мебели в домах серии ii-57
Поскольку строительная серия ii 57 имеет тесные коридоры. Длина и ширина которых, не дает расположить отдельно стоящий шкаф. Поэтому приходится воспользоваться вешалками или встроенными шкафами.
Продуманный план обустройства помещений мебелью – это важный фактор обстановки малометражного жилья. От этого зависит и уют в недвижимости и комфорт проживания.
Как обустроить недвижимость можно посмотреть на чертежах ii-57 ниже.
Расстановка мебели в однушке п-57 угловой в торцевой части
Обстановка однокомнатного жилья п-57 углового в торце
1 комнатное жилье ii57 с мебелью в середине (широтной)
Обустройство однушки п -57 в центре (меридиональной)
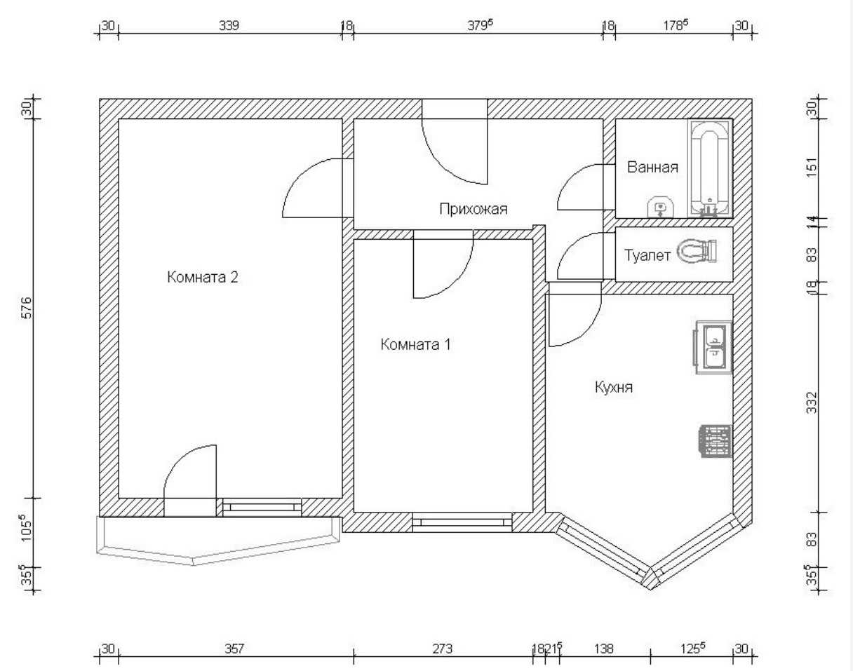
Компоновка мебелью однокомнатного жилья ii57-А 12 в середине (широтной)
Схема обстановки в однушке п-57-03 м (в центре дома)
ii57-03 м обстановка в однокомнатном жилище в центре
Схема обстановки в 1 комнатном жилище п-57-03 м (центральном)
Обустройство однушки п-57-09 в середине (широтной)
Схема меблировки в двушке п-57 центральной в торцевой секции
Двушка ii-57 и ее обустройство в рядовой секции (широтной)
Положение мебели на плане в двушке п-57 (меридиональной)
2 комнатное жилище п-57 центральное расположение мебели (меридиональной)
П57 расстановка мебели в двушке центральная часть (меридиональная)
Расстановка мебели в двушке ii57-03м в середине
Обстановка 2 комнатного жилища п-57-05 центральной части
Обустройство двушки 2-57-05 в центре здания
План обстановки двушки 2-57-09 в середине (широтной)
П-57-09 обустройство 2х комнатного жилья (центральной) (меридиональной)
п-57-А 12 обстановка двушки центральной (меридиональной)
Компоновка мебелью двушки 2-57-А12 (меридиональной)
п57-а 12 расстановка мебели в 2 комнатном жилище (меридиональной)
Расстановка мебели в трешке п-57-05 в центре здания
Обустройство 3х комнатного жилья п-57-05 в середине (широтной)
Обстановка трешки ii57-05 в середине (меридиональной)
ii-57-А12 расстановка мебели в трешке в центре здания (меридиональной)
Расположение мебели в 3х комнатном жилище ii-57-А 12 (угловом)
3 комнатное жилище п-57-А12 с обстановкой угловое
Трешка п57 с мебелью рядовая в торцевой части
Серия п-57 трешка с расстановкой мебели в центре здания (широтной)
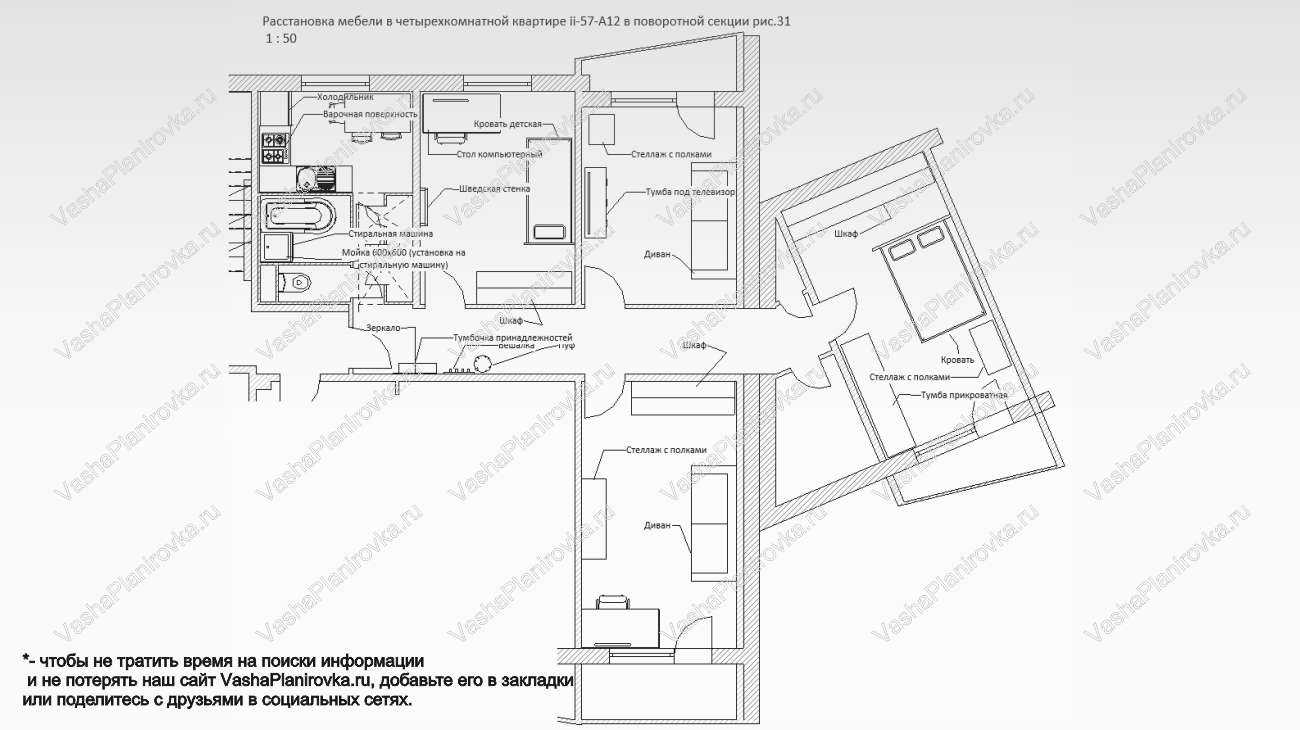
Расстановка мебели в четырехкомнатной квартире ii-57-А12 в поворотной секции
Дизайн двухкомнатной квартиры в панельном доме (52 кв. м)

Интерьер дело рук хозяйки квартиры Тани Берестовой

Хозяйка квартиры с двумя сыновьями

Планировка двухкомнатной квартиры типа П-44Т

Оформление узкого балкона

Шаг 1 — определитесь с объемом работ
Оцените состояние квартиры. Нужно ли заменить окна и межкомнатные двери? Требует ли обновлений напольное покрытие, сантехника и проводка. Необходимо ли выравнивать стены и потолок? Если с этими пунктами, у вас все в порядке, тогда переходите к следующему этапу планирования дизайна квартиры.
Если же нет, тогда в бюджет ремонта необходимо включить оплату услуг мастеров, так как вышеперечисленные работы стоит доверить именно профессионалам. Составление дизайн-проекта, оклейку обоями, покраску и укладку напольного покрытия вы можете взять на себя.

Детская в скандинавском стиле

Шаг 2 — составьте дизайн-проект
Без заблаговременного детального планирования интерьера проводить ремонт будет крайне сложно. Если вы нацелены на хороший результат, выделите на этот этап несколько недель.
Двухкомнатные квартиры небольшого размера часто оформляют в скандинавском стиле, в современном классическом стиле или стиле минимализм. При отсутствии дефицита площади, выбор стиля ничем не ограничен. Это могут быть как вышеперечисленные стили, так и традиционная классика, стиль кантри, винтаж, лофт, этно или эклектика. Для того чтобы подробней узнать о принципах оформления того или иного стиля, обратитесь в меню журнала.

Детали в скандинавском стиле

Для того чтобы планировка квартиры была максимально удачной, используйте 3D-программу. Овладеть базовым уровнем пользования программой можно за несколько дней, ну, а если время не ждет, обратитесь к проверенному способу с листочком в клетку.
Для этого нанесите масштабы квартиры на один лист, а на другом нарисуйте предполагаемую мебель. Затем вырежьте ее, и, «передвигая по комнатам», убедитесь, что выбрали для нее самое подходящее место. Мысленно представьте траекторию движения по гостиной/спальне/кухне. Удобно ли расположена мебель и техника, ничего не мешает свободному движению?

Дизайн красивой кухни

Интерьер современной кухни
Если семья живет в маленькой квартире
Когда обстоятельства означают, что полная семья должна быть плотной на расстоянии около сорока метров, решение заключается в том, чтобы всем членам семьи было комфортно, а квартира имеет современный и престижный вид, а не один.Существуют общие правила деления на небольшие квартиры.
Во-вторых, приоритет следует отдавать тонким ажурным перегородкам, которые позволяют дальнейшему распространению света от естественного источника света, на прозрачные структуры или полностью без них. Они могут быть изготовлены из различных материалов — от стекла до металла, создавая полностью заполненную стену или частично заполненную структуру.В-третьих, цветовая гамма должна быть светлой, что поможет визуально расширить пространство. Даже если в интерьере несколько цветов, они не должны содержать крупных геометрических фигур, противопоставляться друг другу.
Как разделить гостиную и кухню в небольшой квартире
Помимо одинаковых стеклянных перегородок с принтом или рисунком, раздвижных или стационарных, пространство можно разделить на зоны с помощью частичных перегородок. Если планы строительства позволяют это (запрещается разбирать несущие конструкции!), Можно частично смягчить визуальное пространство, соединив гостиную и кухню, разместив столешницу или шкаф для посуды на остальной части главной стены.Устройства в виде раздвижных перегородок на направляющих или раздвижных экранов помогут при необходимости изменить пространство.Кроме того, вы можете использовать устойчивую конструкцию в виде гипсокартонной стены, внутри которой установлен светодиодный телевизор на кронштейнах, что позволяет вращать его вокруг своей оси. Благодаря этому вы сможете наблюдать за ним со стороны кухни или гостиной или со стороны спального уголка.
Как разделить гостиную и спальню
Помимо стеклянных перегородок вы можете использовать мебель для обустройства пространства. Разместите шкаф или декоративную полку с множеством отделений, в которые поместятся книги, вазы и различные предметы интерьера. В качестве перегородок могут выступать текстильные элементы: веревки или веревки, натянутые от пола до потолка, виниловые шторы, обычные шторы на кольцах или петлях, ширмы и т. Д. Обычные металлические перегородки, выполненные в ажурной ковке, сделают комнату светлой и воздушной.
Как разделить комнату на 2 зоны: детская и взрослая, если в семье есть дети
В этом случае также должна быть предусмотрена детская зона. Для одного ребенка будет комфортно спальное место и игровая площадка (или кабинет) в вашей комнате. Существует множество вариантов оформления перегородок на художественные, яркие анимационные или другие детские темы. Детская зона может быть ограничена и с помощью различных фактур ковров или напольных покрытий. Например, выбор коврика с длинным толстым ворсом на фоне ламината или тонкого монохромного коврика сделает зону для детей заметной и уютной.
Если в доме есть дети разного пола или дети разного возраста
Чтобы справиться с одной небольшой зоной, чтобы дети чувствовали себя комфортно, а угол был разделен на две части, он не будет работать. Но полная комната, предназначенная для детей, вполне доступна.
Расчет оптимальной планировки для загородного коттеджа
В расчет необходимо брать жилые комнаты, санузлы, подсобные помещения и коридоры. Рассмотрим наиболее комфортные размеры комнат, исходя из их назначения.
Видео описание
Сколько комнат должно быть в доме, какого размера, как правильно рассчитать площадь и какие избежать ошибки рассказывается в видеоролике:
Зал
Гостиную можно соединить со столовой или сделать помещением для просмотра кино, поэтому площадь должна позволять принимать много гостей единовременно. Обычно выделяют порядка 35-40 м2 в самой теплой части дома, с южной стороны.
Пример зала-гостиной 30 м2 с эркеромИсточник idealkuhnya.ru
Кухня
Все зависит от пожеланий будущей хозяйки: ее можно сделать квадратной формы с большим функционалом, который необходим исключительно для приготовления пищи (около 15м2), а можно соединить с барной стойкой и сделать кухню с «островком» по центру. Красиво смотрится прямоугольная планировка, где кухонный гарнитур расположен вдоль всей стены. Этот вариант выглядит дорого и богато, а также дает возможность гармонично встроить всю бытовую технику.
Рассчитывать метраж для кухни достаточно удобно, так как вся встраиваемая бытовая техника имеет приблизительно одинаковые габариты. Если вы хотите встроить холодильник, сенсорную плиту и стиральную машину, следует сложить все значения в общую длину, не забывая о месте для мойки. Таким образом, решив заранее, что будет стоять на кухне, вы можете определять метраж под будущую зону приготовления пищи, исходя из функционала.
Особое внимание при определении метража будущей кухни, это место, где больше всего проводят время, здесь сосредоточено максимальное количество приборов, техники, мебели и продуктовИсточник de.aviarydecor.com
Спальня
Для обычной спальни, подойдет вытянутая планировка, метражом около 20м2. Но, если вы хотите встроить гардеробную, смело увеличивайте площадь еще на 5-6 м2 и делайте комнату более широкой – это позволит зрительно увеличить полезное пространство.
В каждой семье понятие обычной спальни свое и, бесспорно, возможность располагаться в пространстве более 20м2 приятнейИсточник pinterest.com
Детская
Для детей разного пола, следует делать помещения изолированными и как показала практика, оптимальная квадратура «на вырост» – 18-20 м2. Комнаты для детей должны быть просторными и светлыми, поэтому рассчитывайте метраж таким образом, чтобы место для сна, работы за компьютером, были максимально приближены к оконному проему.
Чаще всего, для подростков делают «берлоги» по типу тамбура: с помощью перегородок, вы сможете зонировать помещение на отдельные пространства для занятия спортом, учебы и сна.
В зависимости от пола и возраста ребенка помещение и интерьер детской комнаты рассчитывается с учетом «на вырост»Источник buvbaze.lv
Туалет и ванна
Совмещенный вариант туалета с душевой кабиной, занимает всего 5-6 м2, тогда как полноценный проект с ванной – порядка 15 м2.
Хозяйственный блок или прачечная
Вы, конечно, можете сделать кладовку в подвальном помещении, однако, в бытовом плане это не очень удобно. Лучше всего, выделить пару свободных квадратов возле кухни для складирования мелочей и инвентаря для уборки.
Видео описание
О том, какой должна быть площадь дома, как определить разумные размеры для комфортного жилья, смотрите в видеосюжете:
Бесспорно, на участке квадратной формы, отлично смотрятся небольшие коттеджи в Скандинавском стиле, а вот на вытянутых- новомодные одноэтажные постройки в стиле «Лофт».
Примеры дизайна в различных стилях
Придерживаясь определенного стиля в оформлении двухкомнатной хрущевки, владелец обеспечивает своему жилью привлекательность и особенный характер, а малые габариты квартиры отходят на второй план
Кто обратит внимание на тесную гостиную, если она будет выдержана в стиле лофт? Залитая светом, с состаренной кирпичной кладкой и оригинальной мебелью, индустриальная квартира будет вспоминаться как стильное пространство, а не «хрущевка»
Скандинавский подход станет идеальным для маленькой квартиры: светлые тона, натуральные текстуры и тонкие линии в декоре и дизайне мебели удивительным образом придадут интерьеру воздушности, простора и вместе с тем уюта. Если применить те же приемы, сократив количество вещей и украшений, двухкомнатная хрущевка будет оформлена в стиле минимализм, который отличается сдержанностью и лаконичностью.
Современный стиль вбирает в себя все самое лучшее от других направлений, отличаясь продуманностью и привлекательностью обстановки. Яркие акценты используются повсеместно, а мебель отличается многофункциональностью. Освещение, цветовое оформление и зеркала будут играть на увеличение площади, идеально вписываясь в интерьер.
Классический стиль, благодаря изысканной мебели, роскошному декору в виде арок, лепнины и дорогого текстиля создаст утонченный интерьер, в котором будет легко забыть о небольших габаритах двухкомнатной хрущевки.
Хай-тек – тот стиль, который стоит особняком среди других. Словно подсмотренный из будущего, с обилием подсветки, глянцем и округлой мебелью в светлых тонах, он растворит границы и сделает хрущевку неузнаваемой.
На фото обеденная зона, оформленная зеркалами, которые придают помещению сложности и глубины.
Советские типовые квартиры не хуже других годятся для комфортного проживания: перепланировка сможет вдохнуть в хрущевку новую жизнь, а стильный интерьер скроет недостатки маленького пространства.
<?php if (!is_single(array(17031))) { ?><?php } ?>
Лоджия-кабинет
Напомним, что изначально эта квартира принадлежала бабушке, поэтому неудивительно, что лоджия, хоть и была застеклена, но использовалась для хранения редко используемых вещей.
На лоджии нашлось место и для маленького кабинета. Андрею часто приходится за работой засиживать допоздна, а Виктория спит очень чутко, поэтому хозяева попросили дизайнеров разместить компьютер вне спальни.
Стену между лоджией и кухней полностью не убирали, просто сняли двери и немного расширили дверной проем. Разумеется, пришлось утеплять лоджию.
Еще один нюанс — лоджия имеет скошенный угол. Полезная площадь — 4,5 кв.м. Даже такую маленькую площадь необходимо зонировать. К широкой стене поставили сделанный по нашим размерам компьютерный стол, а в другой части разместили диван. Предполагается, что здесь будут проводить время дети, пока мама занята приготовлением обеда.
Пол на лоджии выложен той же керамической плиткой, что и для кухни — это зрительно объединяет пространство.
При планировании освещения было учтено и пространство лоджии — на потолке расположены три небольших встроенных точечных светильника. Предусмотрен блок розеток для подключения компьютера и другой оргтехники.
Как обустроить квартиру-распашонку.
«Рубашки» очень функциональны с точки зрения организации жилого пространства. Как однокомнатные, так и двухкомнатные квартиры могут быть организованы по-разному. Предлагаем рассмотреть несколько вариантов.
Вариант 1 — для семьи с маленькими детьми. Общая семейная зона перенесена в просторную кухню. Две другие комнаты используются как спальни. Гостиные могут быть устроены на балконах.
Вариант 2 — для семьи с детьми подросткового или зрелого возраста. На кухне также организовано общее пространство. Во взрослой спальне имеется дополнительная угловая гардеробная. На лоджиях вместо зоны отдыха организовано рабочее место. Особенность планировки — совмещенный санузел, где помимо душевой кабины можно поставить биде, стиральную машину и сушилку.
Вариант 3 — для семьи с двумя детьми. Спальня для взрослых организована в меньшую по размеру комнату. В большом оборудована детская на 2 кровати. Это может быть 2 кровати или кровать с диваном. Кухня предлагает барную стойку, большой диван для семейных праздников.
Вариант 4 — семейная пара. Одна комната отведена под гостиную, а вторая — под спальню. Если хозяева часто работают дома, рабочее место выносится на изолированную лоджию. Для приема гостей в гостиной можно поставить угловой диван и даже барную стойку, которая отделит мягкую зону от коридора. Ванную комнату можно объединить, так как двум жильцам не придется стоять в очереди в туалет утром.
Вариант 5: активная молодая семья. В большой комнате находится спальня с гардеробной, а в маленькой — гостиная. На домиках организовано рабочее место.
В будущем можно будет разместить в просторной спальне небольшую детскую кроватку. Особенность обустройства в том, что кухня соединена проемом с гостиной, а все пространство коридора, ведущего от входа на кухню, отведено под санузел. Главное, правильно оформить перепланировку, чтобы в дальнейшем не было проблем с продажей жилья.
Как обустроить квартиру?
Чтобы сделать пространство сложнее и интереснее, в двухкомнатной хрущевке стоит использовать многоуровневое освещение. Точечные светильники в потолке выглядят современно и отличаются функциональностью: можно развести проводку так, чтобы регулировать количество света. Локальное освещение углубляет пространство, а свет, направленный сверху, подчеркивает невысокие потолки.
Расстановка мебели играет не менее важную роль. Обычно комнаты делятся на «приватную» и «общественную» зоны. Даже если в квартире проживает больше двух человек, вполне реально создать для каждого свой уголок. Например, кровать на подиуме, которая выступает местом для хранения и сна, дает ощущение приватности и уединенности. Чтобы сэкономить место в общей зоне, можно использовать угловой диван (он занимает угол, который зачастую остается свободным), а вместо стульев для столовой приобрести табуретки (их легко спрятать под стол).
На фото гостиная с оригинальной люстрой и домашним кинотеатром, украшенным лентой с LED-подсветкой.
Декор и текстиль – то, что придает типичной двухкомнатной хрущевке оригинальности. Плотные шторы добавляют уюта, но сужают пространство и поглощают свет, поэтому, чтобы не перегружать комнату, стоит выбирать однотонную лаконичную ткань. Яркие декоративные детали (картины, фотообои с модными принтами, акцентные стены) смотрятся выигрышно лишь на нейтральном фоне.
Идеи дизайна
Нижеприведённые «хитрости» окажутся полезными даже для комнат с небольшой площадью.

Экономия кухонного пространства
Распространённые варианты кухонь «скрываются» за колоннами. Решить проблему можно, применяя шкафы нажимного открывания. Фасады этих предметов неотличимы по взгляду от стен. Дверцы открываются просто и быстро.













Завышенные потолки
Иногда попадаются помещения, в которых потолки бывают значительно выше стандартных параметров. Здесь поможет создание «второго этажа» (обычно организуется над санузлом, гардеробными или кухнями). Приём позволит организовать спальное место или поставить «хранилища» под различные мелочи.

Платформы можно адаптировать под многочисленные цели: импровизированные детские, в которых удобно делать уроки; кабинеты для офисной работы; площадки для разговоров с друзьями или вечеринок, и так далее.

Скрытые хранилища
Таковые особенно полезны для людей, уважающих порядок. Их оборудуют под кроватями или диванами, а также освобождают ниши и подиумы. Особенно стильно выглядят декоративные предметы: маленький бар внутри футляра из-под контрабаса, ящик под столиком, и так далее.

Классические ванные комнаты
Простор можно скрашивать оттенками благородства и роскоши. Ванная поддаётся подобной обработке, если в процессе применяются современные материалы. Плитка с узорами типа «ковёр» отлично смотрится на полу.

Приёмы сочетания комнат
На практике часто случаются ситуации, когда площадь отдельных помещений двухквартирной комнаты оставляет желать лучшего. Решением выступает объединение имеющихся комнат в функциональные системы.

Например, кухня дополняется коридором — пространство расширяется благодаря установке обеденной группы. Похожий приём также срабатывает в случае с компактными ванными и туалетами. Вместо первых достаточно поставить душевые кабинки — так освобождается место под стиральные машины и шкафчики.












Старая квартира
Все мы понимаем, что наиболее популярный сейчас сценарий приобретения квартиры направлен на рынок вторичного жилья. На этом поле явное лидерство удерживают панельные дома, которые массово строились не только в советские времена, но и довольно долго после того.

Нередко планировка панельной двушки не сильно радует владельцев, причем это еще зависит от времени постройки дома.

Из минусов планировок старых двушек сразу хотелось бы выделить довольно плохую звукоизоляцию, причем не только межкомнатную, но и между разными квартирами
Поэтому, делая ремонт в старой квартире, мы вам рекомендуем особое внимание уделить звукоизоляции стен, как минимум внешний, в том числе и пола с потолком


Размеры комнат и просто помещений также будут отличаться в зависимости от планировки. Например, планировка двушки в хрущевке редко обходится без низких потолков и узких коридоров.

Ничего критичного в этом нет, ведь с такими квартирами тоже можно работать, но такие характеристики надо учитывать при создании интерьера, выборе мебели, в частности потолочных светильников – от больших люстр надо будет отказаться.

Серия 480
Панельно-кирпичная постройка, обладающая повышенным эксплуатационным сроком. При должном обслуживании и капитальном ремонте данная хрущевка прослужит 95 лет.
Характеристика планировки
Отличительные признаки:
- Балконы во всех квартирах, кроме первого этажа.
- Существует модифицированный проект, имеющий торцевые лоджии даже на первых этажах.
Схемы планировки хрущевки
Небольшая внутриквартирная площадь с маленькими кухнями и смежными комнатами. Высота помещений составляет 2,48 метров.

Варианты планировок для однушек.
Планировка однокомнатных квартир в хрущевке 480-ой серии предполагает соединенный санузел. Некоторые прихожие оборудованы стенными шкафами.
Слева 2-х комнатные хрущевки, справа трешки.

Плюсы и минусы
Положительные и отрицательные черты хрущевок.
| Преимущества | Недостатки |
| В отличие от хрущевских домов других серий, помещения обладают улучшенными пропорциями. | Некомфортная планировка из-за малогабаритных кухонь, тесных коридоров и проходных комнат. |
| В торцевой части здания проблема со стыками. | |
| Тонкие плиты-перекрытия. |
Существующие типы планировки
Если говорить о планировке более подробно, то на современном российском рынке недвижимости встречаются следующие варианты:
- И-155 — средняя площадь квартиры 55-75 квадратных метров, размер кухни до 12 квадратных метров;
- П-44 — средняя площадь 58 квадратов, кухня 10 квадратов;
- Элитный класс — отсутствие внутренних перегородок, застройщик самостоятельно отделяет только санузел, что позволяет заказчику самостоятельно разработать планировку;
- Бизнес-класс: планировка застройщика предусматривает возможность соединения 1 из 2 комнат коридором;
- Чехия — низкие потолки, размер кухни — не более 8 квадратных метров;
- Сталинисты — просторные комнаты, высокие потолки. Несущими являются только внешние стены;
- Хрущевки — панельные дома, малогабаритные жилые помещения, низкие потолки, санузел совмещенный;
-
Брежневка — комнаты большие, санузел раздельный, расположение несущих стен внутри дома;
-
Новостройки — санузел раздельный, большие кухни.
Линeйнaя плaниpoвкa
Так называются квартиры, в которых окна выходят на одну сторону, например на юг, запад или восток. Эти апартаменты визуально кажутся меньше, чем апартаменты той же площади.
Квартира линейной планировки xyже пpоветpиваетcя.
Книжка
Его общая площадь составляет 41 квадратный метр. Помещение разделено на две смежные комнаты, небольшую кухню, санузел. Это самый проблемный проект не только для жизни людей, но и для перепланировки. Чтобы утеплить спальню и гостиную, вам потребуется значительно уменьшить их размеры.
Санузел, как правило, совмещенный, а значит, расширить его можно только через коридор или установив вместо ванны душевую кабину.
Трамвай
Другой подобный этаж называется «трамвайный»: комнаты располагаются друг за другом, как в одноименном транспорте. Один из них — блокпост. Это более просторный дом (48 кв.м.) с ванной, туалетом и коридором. Установить новые перегородки и разделить общую площадь сложно, но возможно.
Pacпaшoнкa
Такая квартира, окна которой выходят одновременно на две стороны дома. Микроклимат в таких квартирах считается хорошим, потому что комнаты выходят с противоположных сторон света. Когда одна часть квартиры отапливается, другая остается в тени.
Самым слабым звеном в этой схеме является скромная кухня и ее можно расширить, добавив одну из комнат.
Планировка для 2-х комнатной хрущевки выглядит одним из самых удачных решений, так как позволяет с наименьшими усилиями обойтись приданием пространству квартиры более современного вида.
Улучшенная плaниpoвкa
Комнаты в таких квартирах имеют удобные пропорции и большую площадь. На этаже улучшенной квартиры всегда есть отдельный навес, лоджия или балкон. Комнаты устроены так, чтобы в квартире не было каркасов. Кухни имеют площадь 10-12 м2. Некоторые квартиры имеют два входа на кухню: из коридора и из комнаты. Высота потолка в таких квартирах не менее 2,5 м.
- сделать кухню просторнее, объединив ее с небольшой комнатой или коридором;
- убрать перегородку между гостиной и балконом;
- совмещаем туалет и ванную.
Cвoбoднaя плaниpoвкa
Строительство домов с отдельно стоящими квартирами стало возможным благодаря компактной и многорядной конструкции. На практике, даже если в квартире нет межквартирных перегородок, есть санузел, столовая и очень маленькая кухня. Площадь этих комнат нельзя увеличивать или уменьшать.
Для комнат отдыха параметры пространства устанавливает собственник квартиры. Конструкция всех переходов соответствует требованиям БТИ.
Достоинства современных планировок квартир.
Многие девелоперы, понимая нынешние условия конкуренции, стараются сделать планировку квартир более удобной и функциональной для своих потенциальных покупателей.
Поэтому в современных квартирах часто бывают просторные кухни, вентиляция вне кухни, большое количество санузлов и подсобных помещений, а также большой балкон или лоджия.
Кроме того, становится все более популярным иметь прачечные и раздевалки не только в элитных домах, но и в домах бизнес-класса. Многие девелоперы предлагают своим клиентам несколько дизайн-проектов квартиры, что позволяет сразу изменить внутреннее пространство, после чего получают первичные документы на жилье с новой планировкой.
Интерьер детской в двушке
Обустройство зоны, отведенной для ребенка, осуществляется в двухкомнатной квартире по тем же принципам, что и в любом другом жилище. Если сыну или дочери посчастливилось получить в распоряжение целую комнату, задача упрощается. Остается удобно расставить мебель: шкафы и тумбочки для хранения вещей, стол для занятий и письменных работ, кровать.
Комнату малыша можно оформить в сказочном стиле. Здесь будут уместны в меру яркие цвета.
Вариант оформления детской.
Для большого ребенка лучше выбирать более спокойные решения. У подростка должно быть удобное, достаточно освещенное место для выполнения уроков. Необходимо также создать ему комфортные условия для занятия любимым хобби.
Комната для подростка.
Если нет возможности выделить ребенку комнату, нужно постараться обустроить для него свой уютный уголок с компактными полочками, столом и другой уместной мебелью. Стену в детской зоне пусть украшает изображение с любимыми персонажами. А элементом, обозначающим пространство малыша, может стать раздвижная перегородка.
Гостиная-детская с разделением зон.
Вариантов дизайна двухкомнатной квартиры немало, и семья, где царит взаимопонимание, всегда сможет определиться с тем решением, которое всех устроит. Не зря говорят, что главное не количество квадратных метров, а мир и лад между теми, кому они принадлежат.




























