Материалы для цокольного этажа
Материалы для строительства полуподвала:
- Для стен – бетонный блок ФБС (может использоваться как фундамент).
- Обожженный красный кирпич (применяется для стен и фундамента).
- Бутовый камень, представляющий собой камень крупного размера, который кладут на раствор как кирпич.
- Стеновые блоки малого формата. Применяется при готовом фундаменте.
- Для обеспечения герметичности стен от грунтовых вод применяют гидроизоляцию. При монолите – наружная герметичность, при кладке – наружная и внутренняя.
- Для наружной обработки стен применяется битумно-полимерная мастика, которая может выполнять роль клея при рулонной гидроизоляции. В случае рулонного материала с самоклеящейся основой его накладывают сверху на поверхность, обработанную горячим битумом. В качестве гидроизолирующей обмазки используют составы полимеров из серии Пенетрон.
- Проклейка стыков ПВХ-лентой.
Гидроизоляция цоколя частных домов осуществляется в 2 слоя. Выбор материала зависит от стен и местных особенностей климата. Этим материалом покрывают все поверхности фундамента и участки соприкосновения фундамента с грунтом. Для гидроизоляции могут использоваться рубероид, толь.
Используйте различный материал для создания цоколя вашего дома
Проекты одноэтажных домов с гаражом под одной крышей: преимущества и недостатки
Многие утверждают, что гараж должен быть расположен отдельно от здания, чтобы избежать неудобств, связанных с его использованием. Однако часто бывает так, что площадь участка не позволяет отвести для этого отдельное пространство, и приходится прибегать к совмещению двух этих зданий, объединяя их под одной крышей. И стоит отметить, что такое решение имеет свои преимущества:
финансовые затраты на строительство бесспорно уменьшаться, если отдать предпочтение такому варианту. Возведение двух отдельных зданий всегда обходится дороже, чем одно комплексное строительство;
Наличие гаража под одной крышей с домом позволит комфортно обслуживать машину в холодное время года
- эксплуатировать гараж, совмещенный с домом, намного удобнее, ведь в холодное время вы можете попасть в машину, не выходя на улицу. Кроме того, такое объединение позволяет хранить в гараже множество необходимых в хозяйстве вещей, за которыми было бы неудобно ходить в гараж, если бы он располагался отдельно от дома;
- благодаря такому объединению существенно экономится площадь. Подобные рациональные решения позволяют разместить все необходимое даже на самом скромном по размеру участке.
К недостаткам такого решения можно отнести необходимость качественной тепло- и звукоизоляции между двумя этими помещениями, поскольку в противном случае, холод из гаража будет проникать в прилегающие комнаты, а звук работающего двигателя автомобиля будет мешать домочадцам.
Благодаря объединению дома с гаражом, можно существенно сэкономить полезную площадь участка
Проекты домов с гаражом под одной крышей: варианты размещения
В процессе выбора или разработки проекта, важно заранее продумать каким образом эти объекты будут располагаться относительно друг друга. И в этом случае основной вопрос возникает как раз относительно гаража, поскольку расположение дома практически всегда очевидно
Гараж может быть расположен по одному из трех принципов:
подземный гараж обустраивается непосредственно под самим здание дома, грубо говоря, в подвале или на цокольном этаже. Такое решение позволяет существенно сэкономить пространство, а также сократить количество необходимых работ с грунтом. Кроме того, это идеальный вариант, если есть необходимость возвести гараж, пристроенный к дому, на участке, который расположен под уклоном;
Размещение гаража в двухэтажном доме необходимо планировать еще на этапе проектирования
- надземный нижний гараж располагается в основании дома, таким образом, чтобы все жилые помещения оказались как бы над ним. Этот способ также эффективен в вопросе сохранения пространства территории, однако, в этом случае повышается высота дома;
- боковой наземный гараж располагается с правой или с левой стороны дома. Главное его удобство – возможность достроить его к уже готовому дому, ведь в случае первых двух вариантов оба помещения должны проектироваться и возводиться одновременно.
Одноэтажные дома с гаражом: фото-проекты
Одноэтажные дома встречаются значительно чаще, чем строения с двумя или тремя этажами. Это связано со многими факторами, и в том числе с простотой обустройства фундамента для него, а также простотой реализации проекта. Ведь одноэтажное здание не требует наличия перекрытий, а также лестниц. В вопросе совмещения гаража одноэтажные дома самые удобные, поскольку исключают необходимость создания перепадов уровня крыши.
Боковой наземный гараж считается одним из самых практичных и удобных вариантов размещения подсобного помещения для машины
Крайне важно уделить должное внимание планировке одноэтажного дома с гаражом, и разместить все помещения таким образом, чтобы избежать нежелательного соседства. Например, это касается детской и гаража, которые не должны быть смежными. В идеале, между жилыми комнатами и помещением для хранения машины должно быть техническое помещение, кухня или санузел
В идеале, между жилыми комнатами и помещением для хранения машины должно быть техническое помещение, кухня или санузел.
Если же говорить о специфике обустройства крыши для такой конструкции, то для этой цели чаще всего прибегают к обустройству двускатной кровли, так как это самый простой и доступный в финансовом плане вариант. Однако, некоторые владельцы, не желающие использовать для своего дома стандартные решения, находят и более интересные варианты.
Пример стильного и практичного размещения гаража перед домом
Так, над домом может быть спроектирована односкатная кровля, а над гаражом – плоская. Такая ломаная конструкция отлично смотрится, вот только водосточная система в этом случае требует особенно пристального внимания.
Задачи цокольных помещений
Цокольный этаж – это полуподвальное помещение, которое частичное углублено в землю. Площадь подобного вида применяется под кладовые, гаражи и другие помещения и должно иметь отличный дренаж, утепление и гидроизоляцию.
Обустройте цокольный этаж вашего дома
Без отопления, разумеется, в таком помещении можно будет находиться только летом, а овощи, запасенные на зиму, могут замерзнуть. Велика возможность появления плесени. Без вентиляции воздух в полуподвале будет спертый и затхлый, а без электричества совсем не обойтись.Читать подробнее: как подготовить погреб для хранения овощей. Поэтому цокольный этаж станет удобным для жизни, если при его строительстве придерживаться необходимых общепринятых норм с проведением отопления, электричества и вентиляционной системы.
При проекте тренажерного зала должен быть решен вопрос хорошей вентиляции
При создании сауны или душевой необходима напорная канализация, особое внимание надо обратить на вентиляцию полуподвала
Проект коттеджа с гаражом и бассейном: особенности
Отличительные черты загородной резиденции, в которой объединены разнообразные дополнительные компоненты, обусловлены тем, что каждый элемент должен быть гармоничен и грамотно объединен с основным сооружением
Огромное влияние, причем самое важное, оказывает такой параметр, как размеры вашего земельного участка – именно площадь надела определит будущую концепцию в архитектурном, конструкторском, инженерном и дизайнерском плане
Если размеры земельного участка позволяют «развернуться», то такие компоненты, как гараж, сауна и бассейн, могут быть возведены отдельно от главного здания, обеспечивая независимость использования, компактность размещения, создание полноценной композиции с включением ландшафтного дизайна. Естественно, что раздельное строительство приводит к тому, что необходимо создавать несколько автономных сооружений со своими инженерными сетями и композиционными решениями, но такой тип строительства позволит не загромождать сам жилой дом.
При более скромных размерах участка применяется объединение всех элементом в едином строении, которое получается достаточно большим и внушительным. С одной стороны, это обеспечивает удобство использования, так как проекты домов с бассейном и гаражом позволят использовать все помещения, не покидая основного коттеджа, не используя уличные переходы; а с другой стороны – создается крупный дом, способный сразу указать людям на ваш статус и архитектурные предпочтения. Как правило, объединенная композиция приводит к получению внушительного, мощного и основательного дома, который самим своим видом говорит о высокой надежности и долговечности.
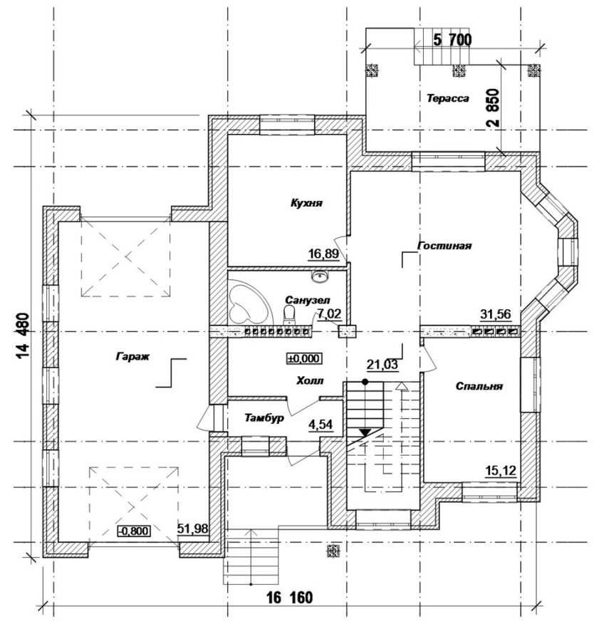
1 этаж
При входе, жильцы будут попадать в тамбур (4,54 кв. м.), который ведет в холл. Размер коридора составляет 21,03 кв. м. Отсюда можно попасть в кухню (16,89 кв. м.) и гостиную (31,56 кв. м.), разделяет эти пространства небольшая каменная перегородка, которая прерывается практически около капитальной стены. Вход оформлен в виде ниши, в которой будет располагаться источник подсветки. Таким образом, в ночное время только по небольшим светильникам можно обнаружить вход в гостиную, сделать это достаточно просто. Именно эта черта придает всей планировке необычность и индивидуальность.

план 1 этажа
Следующая дверь из холла ведет в санузел, площадью 5,8 кв. м. Из холла можно подняться по лестнице на второй этаж. Далее с коридора можно попасть в комнату, которая будет обустроена по желанию хозяина. Здесь полная свобода творчества, начиная от простой спальной комнаты, заканчивая необычной игровой комнатой.
Гостиная обладает выходами на террасу. Здесь в летнее время можно посидеть на открытом воздухе, ухаживать за растениями, а в зимнее просто любоваться необыкновенными окружающими пейзажами.
ТОП-9 преимуществ дома с гаражом
Для владельцев большой усадьбы может быть не принципиальным где расположить место хранения автомобиля: в непосредственной близости от дома или на границе участка. Однако рациональней возвести дом, совмещенный с гаражом. Особенно это актуально для маленьких участков, которые, как правило, выделяют в жилых комплексах. Почему?

Экономятся материалы в процессе постройки
1Экономятся строительные и отделочные материалы в процессе возведения. Только одна стена, которая прилегает в дому возводится из дорогих материалов. Для остальных можно использовать другие варианты. Но не б\у.
2Гарантирован комфорт. Владельцам и членам семьи не нужно в морозную либо слякотную погоду с зонтиком бегать из одного помещения в другое. Обычно планируют дополнительный вход в дом прямо из гаража.

Обычно планируют дополнительный вход в дом прямо с гаража
3Проще контролировать безопасность автомобиля, чем в отдельно стоящем сооружении. Можно воспользоваться единой охранной системой дома.
4Можно использовать как дополнительное подсобное помещение: разместить вещи, шкафы, ящики которыми редко пользуются.
5Подвал для хранения овощей и консервации под гаражом будет теплее и в него проще попасть.

Гараж можно использовать как дополнительное подсобное помещение
6Значительная экономия на коммуникациях: общая с домом система всегда дешевле. Если установить терморегуляторы, то внутри помещения будет приемлемая для автомобиля температура, но не будет большой расход теплоносителя. Машина, которая хранится в теплом месте меньше ломается, дольше сохраняется кузов и она надежна в эксплуатации.
7Если дом со встроенным, хозяин экономит время на расчистку дополнительной территории от снега, помещение для машины и подъездные пути расположены компактно.

Машина, которая хранится в теплом месте, меньше ломается
8Удобно хранить садовый инвентарь: газонокосилки, бензопилы, триммера, шланги для полива, которые кстати могут использоваться для мытья машины, снегоуборочного инструмента и техники.
9В нем размещают мастерскую или уголок для ремонтных работ.

В нем можно разместить мастерскую или уголок для ремонтных работ
Не размещайте в этом помещении котлы отопления для любых видов топлива. Это опасно с пожарной точки зрения. Также не храните топливо (дрова, брикеты, уголь) даже для каминов, барбекю и мангала .
Основные особенности таких домов
Отдельно стоящие гаражи традиционно считаются подсобными зданиями. Нередко при их возведении применяют недорогие строительные материалы, а об отделке зачастую даже не думают. В отличие от этого гаражи, встроенные в ансамбль дома выдержаны в одном стилистическом ключе: цвет, отделка, кровля.
Обратите внимание на несколько особенностей

Гараж, встроенный в дом, выдержан в едином стилистическом ключе
На маленьких участках однозначно выбирают проект со встроенным помещением для автомобиля, в противном случае об организации уютного приусадебного участка можно забыть. Отдельно стоящий занимает много места, поскольку помимо самого строения необходимо делать надежную отмостку вокруг него, подъездную дорожку.
Дом с гаражом должен быть расположен так, чтобы был удобный подъезд. Если каждый раз для въезда внутрь придется делать сложные пируэты по двору, весь смысл присутствия теряется. Любой проект должен повышать комфорт жизни, а не добавлять проблемы.

Дом с гаражом должен быть расположен так, чтобы к нему был удобный подъезд
Проанализируйте финансы. Строительство здания с пристроенным гаражом может увеличить общую стоимость работ. Необходимо делать дополнительную крышу, устанавливать более мощный котел отопления. Сэкономить поможет бюджетный проект со встроенным гаражом.
Обязательно подумайте о перспективе. Если после строительства дома вы со временем думаете приобрести еще один автомобиль, то сразу планируйте на две машины.

Подумайте, будете ли вы хранить в нем велосипед, мопед, мотоцикл, гидроцикл или снегоход. В этом случае размеры увеличиваются.
Немаловажный пункт – шумоизоляция. Звук мотора автомобиля, который заводится под спальней или рядом с детской вряд ли добавит жизни комфорт.

Позаботьтесь о шумоизоляции
Строительные технологии постоянно улучшаются. В настоящее время возводить сооружения сложной архитектурной формы, соединить вместе несколько функциональных зданий можно.
Ландшафтный дизайн для сада своими руками. ТОП-9 стилей, о которых нужно знать + 185 ФОТО
Материал
Если обратиться к предлагаемым на сайтах типовым проектам, можно увидеть, что дома с цокольными этажами проектируют в основном из кирпича или керамоблока и бетонных блоков. Встречаются и проекты из бруса или бревна, но из них в любом случае возводят только наземные этажи.
- Очень удобно формировать стены подвала из крупных блоков ФБС, да и намного быстрее. Главное не забывать, что для придания жёсткости такой кладке под опирание перекрытий требуется выполнить армопояс.
- В нескольких проектах мы видели, что стенки цоколя возводятся из кирпича. В принципе, из него же можно сформировать и уширенную часть фундамента, если это лента, но в проекте указывается, что подушка под неё выполняется в монолите.
- Кирпич можно использовать не только конструктивно, в качестве основного материала фундамента, но и для создания защитного слоя для вертикальной гидроизоляции цокольного этажа. В заглубляемой части для этой цели используется самый дешёвый рядовой кирпич.
- С видимой стороны, которая в такой защите не нуждается, приходится больше думать об эстетике стен. Решить эту задачу поможет всё тот же кирпич, только уже облицовочный или декоративный.
Отделка для основных стен подбирается уже в зависимости от свойств конструктивного материала, хотя немалое значение имеет и архитектурный стиль дома. Чаще всего для внешней облицовки стен проектируют систему вентилируемого фасада, которая позволит и утеплить его если надо, и сымитировать фактуру дерева, камня, декоративной штукатурки или того же кирпича.
Какая будет цена под ключ
Стоимость готового дома в конечном итоге зависит от его размеров, хотя имеет значения и регион строительства. Чтобы сориентироваться, зайдём на один из сайтов столичных компаний, предлагающих самые разные проекты домов с цокольными этажами с возведением под ключ.
Для примера возьмём вариант с цоколем и мансардой, размером в плане 10,56 на 7,06 м и общей площадью 138,1 м². Не слишком большой дом, рассчитанный на среднестатистическую семью из 4-5 человек. Компания предлагает построить такой дом в двух вариантах: из газобетона за 4350 тыс. руб., и из керамоблока за 4490 тыс. руб.
В эту стоимость входит:
- Анализ геологии участка.
- Стеновой материал: если газоблок, то D500 толщиной 300 мм; если керамоблок, то толщиной до 510 мм.
- Перегородочный материал – те же блоки, но соответствующей ширины.
- Лестница только временная.
- Вентканалы и дымоходы из кирпича.
- Монолитное цокольное и балочное чердачное перекрытие.
- Утепляемая стропильная система с покрытием металлочерепицей.
- Утеплённый пенополистиролом и облицованный кирпичом фасад.
- Подшитые софитом кровельные свесы и установленная водосточная система.
- Полный комплект пластиковых окон и стальная входная дверь.
Вариантов с отделкой внутри и дизайном мы не нашли, так как для этого нужен отдельный проект и совсем другие специалисты.
Особенности конструкции
Чаще всего при строительстве цокольного этажа используют железобетонные монолитные плиты
Цокольный этаж – важная часть фундамента. Подошва ленточного фундамента располагается на несколько сантиметров ниже уровня будущего пола цоколя с гаражом, проект может включать и другие бытовые нежилые помещения. Чаще всего при строительстве используют железобетонные монолитные плиты.
Монтаж столбчатого фундамента для гаража и преимущества
Несколько советов:
- При проблемах с грунтом, фундамент и стены, возводимые из готовых бетонных блоков, устанавливают на железобетонные подушки.
- При сухом грунте строительство стен проводится с использованием облегченных бетонных блоков.
- Необходимо предусмотреть вентиляционные отверстия достаточного объема для естественного притока свежего воздуха. Это предотвратить появление сырости и плесневых грибков в нижнем этаже и гараже.
Планируем цоколь
Наиболее распространенными и востребованными сегодня проектами загородных домов являются строения с цокольными пространствами и мансардами, поскольку имеют больше преимуществ перед зданиями с обычными подвальными помещениями.
Проект дома с цоколем и мансардой обойдется значительно дешевле двухэтажного здания, к тому же позволяет увеличить жилплощадь первого этажа за счет переноса технических, хозяйственных и других нежилых помещений в область полуподземных комнат.
Чаще всего такие проекты используются на небольших участках земли или исключительно для экономии места. Можно заказать уже готовый проект здания и внести в него свои корректировки.
Можно заказать индивидуальную разработку, но цена такого проекта будет значительно выше готового варианта, однако будут учтены все ваши пожелания и обязательные технические требования.
Образец плана дома с мансардой и цоколем.
Организация цокольного пространства
Проект цокольного этажа обычно вмещает в себя все те помещения, которые не являются жилыми и предназначены для хозяйственных или других нужд.
К ним обычно относится:
- гараж;
- спортзал;
- котельное помещение;
- мастерская;
- узел водоснабжения и канализации;
- баня или сауна;
- технические помещения для хранения садовых инструментов.
Поскольку углубленное пространство обладает хорошей звукоизоляцией, то все шумные механизмы систем обеспечения дома и мастерские располагаются именно в этом помещении и не создают жильцам никакого дискомфорта. Также в подобных зданиях часто планируют такие помещения для отдыха как бассейн или бильярдная с мини-баром.
Виды цокольных помещений
Каждый проект цокольного этажа может быть выполнен в нескольких видах, в зависимости от располагаемых в нем помещений.
Наиболее распространенными видами таких строений являются:
- выступающий;
- этаж на уровне фундамента;
- углубленный.
Формы цоколя.
- Выступающий цоколь чаще всего применяется в тех случаях, когда здание не предусматривает массивных несущих стен. Такой вид обычно применяют, разрабатывая проекты одноэтажных домов с цоколем, предусматривая постройку стен из кирпича или дерева маленькой толщины при наличии легкой мансарды.
- Цоколь на уровне фундамента применяется крайне редко, поскольку требует дополнительной гидроизоляции между фундаментом и основными несущими стенами здания, что приводит к повышению расходов на строительство. Используется только если остальные два варианта, по каким- либо причинам применить невозможно.
- Углубленный вариант чаще всего закладывается в проекты цокольных этажей, поскольку является самым надежным с инженерной точки зрения, позволяет выстраивать небольшие здания с толстыми несущими стенами, и рассчитан под несколько этажей. К тому же стекающая со стен здания жидкость не застаивается в местах стыка фундамента, что препятствует образованию сырости.
Преимущества и недостатки
Здания с цокольными помещениями имеют ряд существенных преимуществ. Основным преимуществом можно назвать экономию жилого пространства в верхних помещениях, благодаря смещению гаража и технических помещений в подземную часть строения.
Наличие такого этажа значительно углубляет фундамент здания, что многократно увеличивает устойчивость строения на грунте. Пространство углубленного помещения уходит в землю как минимум на полтора метра, а это значительно ниже уровня промерзания почвы в холодное время года.
Такая глубина препятствует переохлаждению полуподземных помещений в зимний период и сохраняет тепло. Проекты цокольных этажей не предполагают утепления пола жилого помещения, поскольку он не имеет прямого контакта с землей. Это исключает попадание влаги на первый этаж и препятствует образованию сырости. (См. также статью Как утеплить цоколь фундамента: особенности.)
В цокольных зданиях разрешено устанавливать котельное оборудование, работающее на природном газе, в отличие от обычных подвалов.
Котельная в частном доме: фото
Каждый проект дома с цоколем имеет и свои недостатки. Для возведения здания с полуподземным пространством, необходимо выкопать большой котлован, в то время как для обычного дома достаточно небольшой траншеи глубиной в 1 метр.
Если траншею можно выкопать самостоятельно при помощи лопаты, то для котлована необходимо нанимать экскаватор, что выливается в дополнительные финансовые затраты. Однако в общей сумме, затраты на строительство подземного помещения значительно меньше.
Выкапываем необходимого размера котлован.
При наличии большого котлована, вам необходимо позаботиться и о вывозе лишнего грунта, если, конечно, участок не позволяет распределить его равномерно по всей территории.
Особенности проектирования
В независимости от проекта и плана дома с гаражом есть ряд правил и нюансов, соблюдение которых обязательно, ведь именно от них зависит успешность реализации задумки
В первую очередь важно заранее продумать расположение жилых комнат относительно гаража
Нюансы, которые необходимо брать во внимание:
- Каждый шаг и принятые решения обязаны согласовываться с противопожарной и санитарной службами. Это очень важный момент, так как дом должен быть комфортным для проживания в нем всей семьи. Кроме того, нужно избегать возможных трудностей и проблем, ведь последствия ошибок могут быть непоправимы.
- Большинство проектов рассчитано на одновременное возведение и гаража, и дома, так как они будут располагаться на одном общем фундаменте. Если не соблюдать все прописанные рекомендации, то можно создать себе проблему в виде разноуровневого фундамента.
- Необходимо сооружение качественной вентиляционной системы, так как в дом могут проникать неприятные запахи бензина, масел. Такая проблема создаст дискомфорт, ведь вряд ли кому-то понравится дышать парами бензина и прочих горючих материалов.
- Необходима качественная гидроизоляция. Для должного уровня влажности в гараже нужно заложить качественный дренаж, способный гарантировать комфортные условия.
- Должна быть правильная связка стен, что рассматривается еще на этапе строительства дома и гаража, совмещенных одной крышей.
Дом с гаражом под одной крышей: красивые проекты для жизни от которых сложно отказаться (фото)
Автолюбители прекрасно знают, как это удобно оставлять машину в своём доме, а не стоянке, даже если она находится через дорогу. Именно по этой причине сегодня так востребованы проекты домов с гаражом под одной крышей. У хозяев такого жилища имеется возможность в любую минуту проверить, каково состояние автомобиля, быстро собраться и выехать из дома в случае возникшей необходимости. Учитывая современный быстрый темп жизни, это имеет большое значение.
Обустройство террасы над гаражом – отличный вариант использования плоской крыши
Планировка дома со встроенным гаражом
Гараж в цокольном этаже
Многие проекты домов с цокольным этажом создаются с целью размещения там гаража. Они считаются гораздо более сложными сооружениями, чем подвал, приспособленный под хранилище. Прежде всего, располагаться он должен на глубине не менее двух метров, ширина не менее четырех, а длина не менее шести метров.

В отличие от подвала для хранения продуктов, гараж должен быть отапливаемым помещением. Причём температура в нём не должна сильно отличаться от температуры внутри дома, поскольку если столь крупное помещение, как гараж, не отапливать, как следует, то, находясь непосредственно под жилыми комнатами, он неизбежно будет выхолаживать и жильё. В этом случае неизбежно возрастут затраты на отопление.
Если для освещения продовольственного склада потребуется всего одна лампочка без плафона и абажура, то в гараже потребуется полноценное освещение.

Если для того чтобы попасть в подвал, с хранящейся в нём снедью достаточно будет воспользоваться приставной лестницей, то для выезда из гаража потребуется крепкий пандус.

Достоинства и недостатки строений с цоколем
Проект 8×8
Одноэтажный дом-баня из бруса на ленточном фундаменте включает террасу, одну комнату, помещения для банных процедур: парную и душевую. Есть выход на террасу.
Общая площадь одноэтажного дома-бани — 50 м2.
- площадь террасы — 12 м2;
- количество комнат: 1;
- материал (оцилиндрованное бревно д200; бревно ручной рубки; брус/профилированный брус 150×150);
- ленточный фундамент;
- обработка антисептиком.
Планировка пространства:
- тамбур — 3,55 м2;
- комната отдыха — 23,35 м2;
- парная — 5,20 м2;
- душевая — 2,90 м2;
- санузел —2,90 м2;
- терраса — 12,10 м2.
Пространство комнаты можно зонировать и выделить место для обустройства кухонного уголка. В зоне отдыха устанавливают диван, который можно раскладывать и превращать в спальное место.
Комплектация «под крышу» (фундамент, коробка, крыша):
- сруб бани (бревно):
- материал внутренних стен — бревно;
- терраса с перилами из бревна;
- лаги на первом уровне + устройство;
- потолочное перекрытие снабжено стропилами;
- высота строения — 2,1 м (3,6 м — с фронтонами);
- межвенцовое утепление;
- система стропил изготовлена из обрезной доски (50х150) + устройство;
- обрешетка выполнена из обрезной доски (25х150) + устройство;
- крепление — метизы;
- компенсаторы усадки.
- временная кровля под усадку + устройство;
- разгрузка;
- монтаж стенового комплекта (включая слой межвенцового утеплителя).
Цена дома с цокольным этажом в Москве
Стоимость жилого здания с цокольным этажом напрямую зависит от следующих факторов
- Этажности.
- Общей площади.
- Рельефа местности и типа грунта на участке.
- Общей сложности проекта.
Такой дом потребует много внимания для цокольного этажа, так как он должен выдержать вес верхних двух этажей Источник analytspectr.ru
- Глубины залегания водоносных слоев.
- Объема земляных и бетонных работ.
- Обустройства дренажной и вентиляционной систем для создания оптимального микроклимата в подвальных помещениях.
Также на общую стоимость дома влияет материал, из которого он возводится. Это может быть кирпич, блоки керамзитобетонные, газо- или пеноблоки, бревно или брус. А так же, цена дома с цокольным этажом под ключ пусть и типового проекта увеличится, если в него будут вноситься изменения. Значительная разница с типовым проектом в сторону увеличения наблюдается при индивидуальном проектировании, которое можно заказать в Москве.
Проекты домов
Полезно будет рассмотреть варианты планировок, чтобы принимать правильное решение и добиваться максимальной эффективности в строительстве.
С гаражом
Подобный тип планировки каркасного или кирпичного дома с цоколем позволяет практически не менять общую высоту строения. Но к составлению проекта нужно подходить максимально внимательно. Неучет даже «небольших» тонкостей грозит серьезными проблемами. Обязательно придется проанализировать почву, установить уровень влажности. При чрезмерном уровне увлажнения может пострадать сам автомобиль.
Корректировка проекта под условия местности обязательна. Потолки современных цокольных этажей будут составлять как минимум 2 м от пола. Другими важными требованиями являются качественная вентиляция и вытяжка, безопасная в пожарном отношении дверь и стабильная система отопления. Отделка выполняется пожаробезопасными, стойкими к разогреву материалами. Выездные ворота оборудуют так же, как и в обособленном здании.
С мансардой
План частного деревянного дома с цоколем и мансардой может предусматривать общую площадь до 360 м2. На такой площади вполне можно разместить террасу, котельный узел и зону кухни-столовой. Облицовка обязательно выполняется из природного камня. Хороший пример такой постройки приведен на фото. Предусмотрена как общая изящная конструкция, так и комфортабельный полуподземный этаж.
Одноэтажные
В доме размером 15х15 м может быть размещена котельная, гараж и кухонно-столовая зона. Основные конструкции часто изготавливаются из дерева. Наилучшим вариантом является использование клеевого бруса. Однако широко распространено и строительство из кирпича.
Приведенный на фото вариант:
- облицовывается двухцветным кирпичом;
- оснащается монолитным, ленточным или железобетонным фундаментом;
- оборудован многоскатной кровлей;
- имеет деревянную лестницу по индивидуальному заказу;
- включает пол первого этажа и перекрытие из монолитного железобетона.
Довольно широко распространены готовые цокольные дома 10х10 м. В такой постройке можно уже проявить некую свободу действий. Обычно стараются для каждого члена семьи выделить по обособленной комнате. Возможны варианты:
- с 3 спальнями и гостевой зоной;
- с парой жилых комнат и «студийной» кухней;
- с парой спален и гостиной;
- с добавлением террасы или веранды.
Двухэтажные
Проект монолитного 2-этажного строения с цоколем в чистом виде встречается редко. В комбинированных стенах монолит сочетается с кирпичом. Фундамент и перекрытия для большей надежности изготавливаются из монолитного железобетона. Если нижний ярус делается из монолитного бетона, придется тщательно рассчитывать заглубление и ширину стен. Лучше обратиться к профессионалам.
При проектировании нередко стараются все же воспользоваться вариантом с жилым цокольным ярусом
В этом случае максимальное внимание придется уделить утеплению постройки. Простой световой шахты, даже в сочетании с окошками, недостаточно для приемлемой инсоляции. Применяют надстройку с фиксированной или изменяемой высотой
Для дополнительного улучшения микроклимата используются солнечно-воздушные коллекторы
Применяют надстройку с фиксированной или изменяемой высотой. Для дополнительного улучшения микроклимата используются солнечно-воздушные коллекторы.
Трехэтажные
На фото приведен один из вариантов дома с цокольным ярусом высотой 3 этажа. Небольшой краснокирпичный участок на фасаде смотрится очень притягательно. Впечатление выгодно дополняется боковым кованым балконом. В целом постройка проектировалась явно с расчетом на спокойный и гармоничный вид. Обрамление нижнего яруса натуральным камнем тоже вписывается в общую концепцию.
Сауну и бассейн рациональнее будет размещать не в полуподвале, а на первом этаже. Место для спальни выбирают в максимально тихой зоне.
В любом случае для внешней отделки цоколей рекомендован каменный материал. Однако его натуральные варианты, несмотря на внешнюю притягательность и практичность, довольно дороги. Потому можно остановить свой выбор на искусственных аналогах. Независимо от своих предпочтений, придется заниматься тщательным подбором по внешнему виду. Чаще всего применяют камень на цементной основе; если трудно предпочесть конкретный вариант, он будет вполне оправданным решением.
Сам цоколь стоит построить из пеноблоков. Первым шагом, как и всегда, оказывается выравнивание основания и гидроизоляция фундамента. Направляющие и специальные «шнуры» помогут выдержать идеальные линии. Первый ряд блоков для наибольшей надежности упрочняют гнутой арматурой. Любые швы требуется тщательно заполнить раствором.
Этапы строительства дома с цокольным этажом
Перед постройкой цоколя в доме стоит четко понимать, зачем он нужен. При его возведении следует учесть дополнительные финансовые затраты и подробно ознакомиться со всеми этапами строительства.
Роем котлован
Есть три типа цокольных этажей: на уровне фундамента, выступающий и заглубленный. В последнем случае земля должна находиться в сухом состоянии. Процесс постройки начинается с котлована, его площадь заранее определяется.
Глубина должна быть приблизительно на 1 метр выше уровня подземных вод. Его определяют по воде в колодце в жару. Начинать строить цокольное помещение лучше летом.
Обустройство дренажной системы
Функционирование дренажной системы влияет не только на цоколь в доме, но и на все здание. Сделать ее достаточно легко. После рытья котлована, стоит убрать мусор, сделать ровным дно и утрамбовать. В его углу следует вырыть яму, куда ставится металлическая бочка. Ее края равны с полом.
Дренажная система
Чтобы дно было ровным, следует засыпать его слоем мелкого песка. Толщина должна составлять не меньше 15 см и не больше 20 см. После повторного выравнивания песка, на поверхность кладется гидроизоляция. На нее кладется арматурная стека, затем происходит заливка бетона.
Между бочкой и полом должны отсутствовать щели, иначе в них будет попадать жидкость. В бочку ставится дренажный насос и система установлена.
Монтаж стен цоколя
Стены в основном возводят кирпичные или из строительных блоков. Песчано-цементная смесь выступает связующим раствором. После выкладывания стен, стоит создать верхнее перекрытие. Для этого применяются бетонные плиты. Их стоит выбирать для проекта кирпичного дома с цокольным этажом из-за значительного уровня прочности.
Вентиляция
Если такое помещение создается для хранения продукции, важна хорошая вентиляция. Иначе в цоколе будет много плесени, что исключает хранение еды.
Вентиляция
С двух сторон цокольного помещения ставится пара вертикальных труб (вытяжная или приточная). Они могут быть сделаны из металла или пластика. Приточная труба нужна для втягивания воздуха снаружи, а вытяжная вытягивает его из цоколя.
Воздушные потоки
Нижний конец приточной трубы находится на уровне приблизительно 20 см от пола. Конец другой трубы располагается противоположной стороне на 30 см от потолка. Благодаря такой системе происходит беспрерывная циркуляция воздуха.
Гидроизоляция
Гидроизоляция требуется сделать в пару слоев. Материалом покрывается горизонтальная и вертикальная часть цоколя и области соприкосновения основания и цоколя с землей.
Гидроизоляция
Для оклеечных работ подойдет толь или рубероид. Обмазочным материалом может стать битумная мастика.





























